Apresentamos uma loja com grande potencial, situada no centro da cidade do Sumbe, numa localização de elevada afluência e grande acessibilidade. O centro da cidade oferece um enquadramento com uma variedade de oferta de serviços, instituições públicas e locais de interesse.
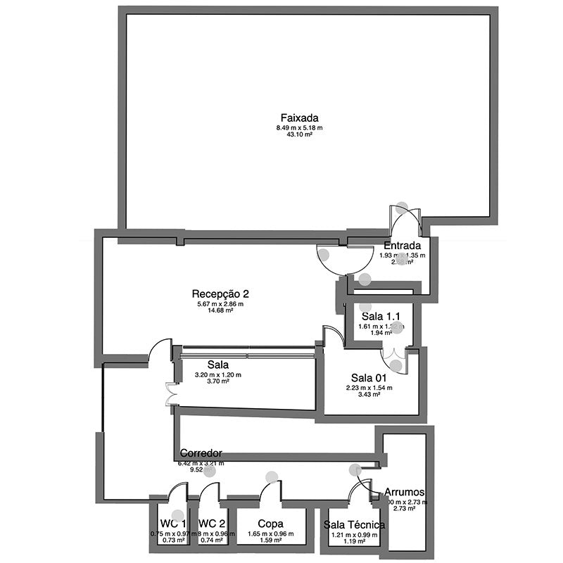
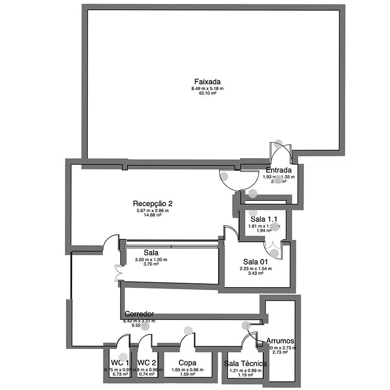
Esta loja, inserida num terreno de 1000 m², conta com 130 m² de área de construção, com um único piso, estrutura pré-fabricada e apresenta características funcionais de agência bancária. A área interior é constituída por área de atendimento ao público, backoffice, sala de grandes contagens, sala de bastidores, sala de caixa-forte, área destinada a ATM, economato, copa e WC. A área exterior dispõe de um bloco com função de área técnica e um WC exterior e estacionamento.
A loja encontra-se junto a uma das principais ruas da Cidade, próximo à Estrada Nacional, o que lhe traz visibilidade acrescida. Foi anteriormente uma agência bancária, apresenta acabamentos de qualidade e não requer grande investimento para poder ser utilizada.
Nota: O tour virtual 3D que aqui se apresenta é referente a Loja Kaop, sendo meramente exemplificativo, pois as lojas que foram anteriormente agências bancárias apresentam estrutura similar.
Localização: Kwanza Sul
Rua Comandante Kassege, Município do Sumbe, Kwanza Sul
Localizado no Sumbe, capital da província do Cuanza Sul. O acesso ao imóvel é realizado pela Rua do Caboqueiro, que por sua vez dá acesso a Avenida dos Aliados uma das principais vias da cidade. O Governo Provincial do Cuanza Sul encontra-se a 1,5 Km de distância e a Administração Municipal do Sumbe a 400 metros.
PAGAMENTOS SEGUROS
Suas informações de pagamento são processadas com segurança. Pagamentos por Referência ou Multicaixa Express, ou cartão de Crédito VISA.
Não armazenamos detalhes de cartão de crédito nem temos acesso às informações do seu cartão de crédito.





