Apresentamos uma loja situada na cidade do Cubal na província de Benguela, junto às principais agências bancárias da cidade.
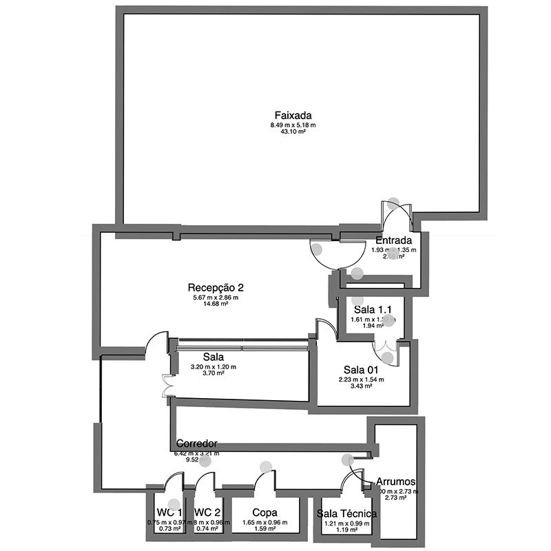
Esta loja conta com 90 m² de área bruta de construção, inserida num terreno de 500 m² com um único piso de estrutura pré-fabricada, sendo constituída por área de atendimento ao público, área de ATM, back office, economato, WC polo técnico, WC, guarita, logradouro e uma área de terraço na traseira.
Foi anteriormente uma agência bancária, apresentando acabamentos de qualidade e não requer um grande investimento para poder ser utilizada.
Nota: O tour virtual 3D que aqui se apresenta é referente a Loja Kaop, sendo meramente exemplificativo, pois as lojas que foram anteriormente agências bancárias apresentam estrutura similar.
É de notar que as fotos presentes representam um imóvel similar ao proposto, algumas diferenças podem ocorrer.
Localização: Benguela
Rua Comandante Dack Doy da CNE, Município Cubal, Benguela
O Cubal, cidade e município da província de Benguela, situa-se a cerca de 146 Km da Cidade de Benguela e é servido pela linha dos Caminhos de Ferro de Benguela (CFB).
PAGAMENTOS SEGUROS
Suas informações de pagamento são processadas com segurança. Pagamentos por Referência ou Multicaixa Express, ou cartão de Crédito VISA.
Não armazenamos detalhes de cartão de crédito nem temos acesso às informações do seu cartão de crédito.
 
 
            
 
      
 
      
 
      
 
      
 
      
 
      
 
      
 
       
        