Esta loja encontra-se situada no Condomínio Villas de Luanda, junto a estrada de Catete, a cerca de 10 minutos do centro da cidade de Luanda e beneficia da proximidade a FILDA, supermercados variados, farmácias, escolas, restaurantes, agências bancárias, entre outros serviços.
O Condomínio Villas de Luanda, alia a proximidade a algumas das principais vias de acesso da cidade a um ecossistema restrito de habitações, serviços comerciais, áreas de lazer com ginásio, áreas polidesportivas, com segurança e estacionamento.
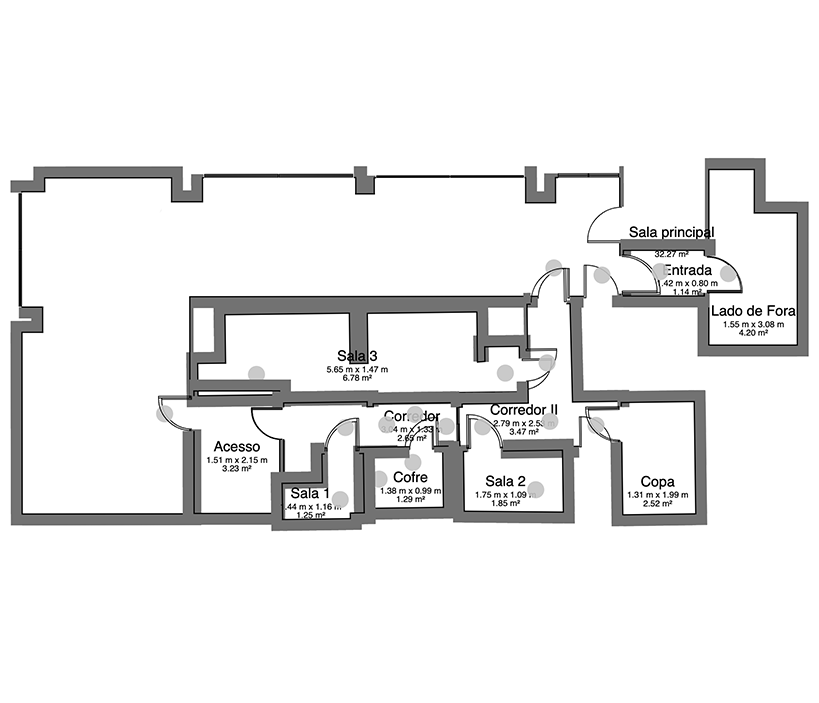
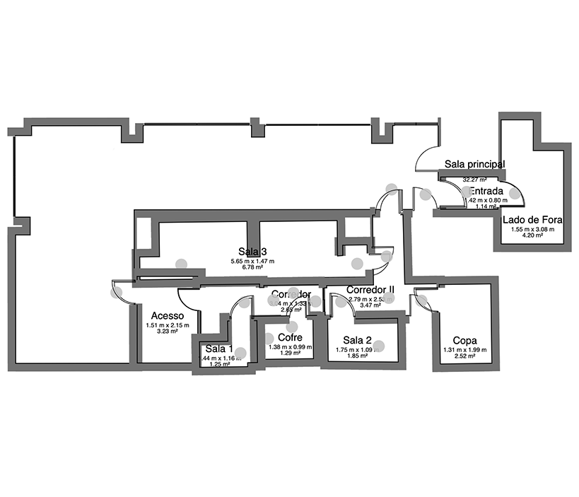
A loja que apresentamos situa-se no rés-do-chão do Edifício Kwanza-Sul e conta com 165 m². É constituída por área de atendimento ao público com três postos de trabalho, área de ATM, sala de reunião, copa, WC, polo técnico, cofre, arrumos e tesouraria.
Foi anteriormente uma agência bancária, apresenta acabamentos de qualidade, saneamento e as estruturas funcionais preservadas pelo que não requer um grande investimento para poder ser utilizada.
Localização: Viana
Condomínio Villas de Luanda (Cazenga, Filda)
Localizado no interior de um condomínio em frente à antiga Feira Internacional de Luanda, numa rua paralela à Avenida Deolinda Rodrigues (Estrada de Catete).
PAGAMENTOS SEGUROS
Suas informações de pagamento são processadas com segurança. Pagamentos por Referência ou Multicaixa Express, ou cartão de Crédito VISA.
Não armazenamos detalhes de cartão de crédito nem temos acesso às informações do seu cartão de crédito.






