Apresentamos um espaço comercial, situado no centro de Saurimo, Província de Lunda Sul, numa localização de elevada afluência e com vias de acesso asfaltadas e em boas condições de circulação. O centro da cidade oferece um enquadramento com uma variedade de oferta de serviços, instituições públicas e locais de interesse.
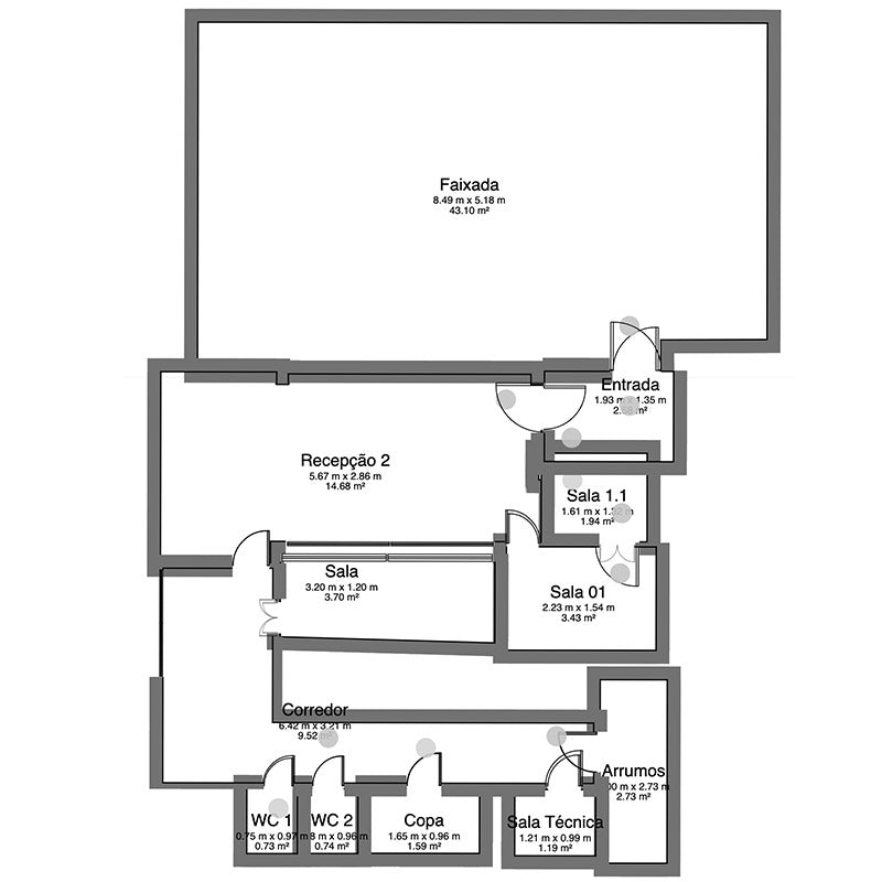
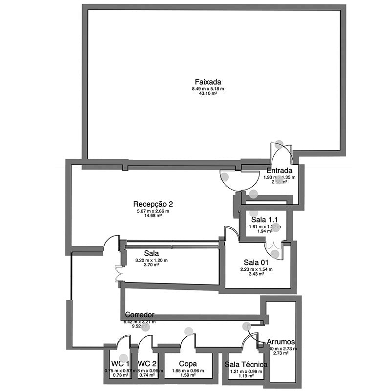
Esta loja conta com 160 m² de área bruta de construção, inserida num terreno de 550 m², com um único piso de estrutura pré-fabricada. A área interior é constituída por área de atendimento ao público, backoffice, sala de caixa-forte, área destinada a ATM, economato, copa e WC. A área exterior dispõe de um bloco com função de área técnica com depósitos para armazenamento de gasóleo e água, área para seguranças e WC.
Foi anteriormente uma agência bancária, apresenta acabamentos de qualidade e não requer um grande investimento para poder ser utilizada.
Nota: O tour virtual 3D que aqui se apresenta é referente a Loja Kaop, sendo meramente exemplificativo, pois as lojas que foram anteriormente agências bancárias apresentam estrutura similar.
É de notar que as fotos presentes representam um imóvel similar ao proposto, algumas diferenças podem ocorrer.
Localização: Lunda Sul
Bairro Agostinho Neto, Comuna de Suarimo, Província de Luanda Sul
Localizado em Saurimo, cidade e município de Angola, capital da província de Lunda Sul, com uma envolvência predominante em estabelecimentos hoteleiros, hospitalares e comerciais, próximo ao Governo Provincial da Lunda-Sul e com fácil acesso à Estrada Nacional 180, uma das principais vias da cidade.
PAGAMENTOS SEGUROS
Suas informações de pagamento são processadas com segurança. Pagamentos por Referência ou Multicaixa Express, ou cartão de Crédito VISA.
Não armazenamos detalhes de cartão de crédito nem temos acesso às informações do seu cartão de crédito.







